新築一戸建
+mam【新築】島本町広瀬2丁目 [物件番号:1299]
- 価格3,590 万円(税込)
- 交通阪急京都線 「大山崎」駅 徒歩14分
JR京都線 「山崎」駅 徒歩13分
阪急京都線 「水無瀬」駅 徒歩15分 - 所在地島本町広瀬2丁目
令和7年11月に完成する耐震等級3相当のお家で安心!収納もたっぷりで家具も不要(^^♪
- この物件の資料請求はこちら
- 会員登録はこちら
-
お電話でのお問い合わせ
0120-396-123
営業時間:9:00~18:00
定休日:無休(年末年始、GW、お盆を除く)
アクセスマップ
物件概要
物件番号 | 1299 | ||
---|---|---|---|
所在地 | 島本町広瀬2丁目 | ||
交通 | 阪急京都線 「大山崎」駅 徒歩14分 JR京都線 「山崎」駅 徒歩13分 阪急京都線 「水無瀬」駅 徒歩15分 |
||
販売価格 | 3,590 万円(税込) | 接道状況 | 東側 公道 |
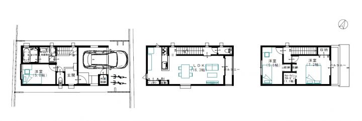
間取り | 3LDK | 都市計画 | - |
土地面積 | 65.68m²(19.90坪) 公簿 | 国土法届出 | 不要 |
延床面積 | 104.33m² | 地目 | |
構造 | 木造 3階建て | 土地権利 | 所有権 |
築年月 | 2025/11 | 駐車場 | 有 大きさ現地でご確認ください |
用途地域 | 第一種中高層住居専用地域 | 設備 | 都市ガス・公共下水・システムキッチン・食器洗い乾燥機・温水洗浄便座・複層ガラス・スマートキー・TVモニタ付きインターホン |
建ぺい率・容積率 | 60% ・ 160% | 学校区 | 町立第一小学校/町立第一中学校 |
現況・引渡 | その他・相談 | 取引態様 | 売主 |
備考 | ※別途費用(税込み) 図面作成及び確認申請料 60万円 水道市納金 10万円 外構工事費 80万円 ※建築確認番号:KS125-6120-51360号 |
会員登録をすると「未公開」の情報をご覧いただけます!
-
未公開物件情報が閲覧できます!
一般の方へは公開されない 未公開物件情報が検索できます。
豊富な物件情報の中から、ご希望にあった物件がみつけられます! -
会員限定イベントにご招待!
週末や休日に開催されることが多いオープンハウスや内覧会。
そんなイベント情報もメールでお届けしますので、確実に予約可能です。 -
新着物件情報メールを配信!
ご希望条件にあった新着物件情報をメールでお届けします。
これでご希望の不動産を見逃すことはありません。 -
会員限定セミナー情報をお知らせ!
安心して不動産選びをしていただくために、各種セミナーを開催しています。 お気軽にご来店ください。
-
お電話でのお問い合わせ
0120-396-123
- この物件の資料請求はこちら
- 会員登録はこちら